Skip to content

GRAZ 114

Das Ziegelfertighaus

Preis auf Anfrage

113,97 m2
großzügiges Badezimmer
Grundrissänderungen möglich
2 große Kinderzimmer

GRAZ 114

Das Ziegelfertighaus

Preis auf Anfrage

grundriss flexibel

Graz 114: Kompakt geplant, großzügig gelebt

Unser Typenhaus Graz 114 ist ideal für eine vierköpfige Familie. Mit 113,97 m² Gesamtfläche auf zwei Geschoßen bietet das Ziegelmassivhaus viel Platz zum Wohlfühlen für die ganze Familie. Die lichtdurchfluteten Räume vereinen zeitgemäße, offene Wohnräume mit modernster Architektur.

Der kostenoptimierte Grundriss ermöglicht eine flexible Raumgestaltung.

Graz 114 – DESIGN

Graz 114 – mit Walmdach

Graz 114 mit Flachdach – BASIC

Beschreibung

Mit dem Graz 114 wird modernes Wohnen zum echten Wohlfühlerlebnis. Dieses Haus überzeugt durch eine durchdachte Raumaufteilung und bietet ausreichend Platz für die ganze Familie. Im Mittelpunkt steht der offene Wohn- und Essbereich, der für ein helles und einladendes Wohngefühl sorgt. Eine großzügige Terrasse erweitert den Wohnraum nach außen und lädt zum Entspannen und Genießen ein.

Besonderheiten

  • offener Wohn-Ess-Koch-Bereich
  • 2 Kinder- und 1 Schlafzimmer
  • geräumiger Vorratsraum

Wohnfläche

Gesamtfläche: 113,97m2

zur Raumaufteilung

Dachtypen

  • mit Flachdach
  • Visualisierung des Austrohaus Typenhauses Graz 114 mit Walmdach – modernes Einfamilienhaus in Ziegelbauweise für Hausbau in Österreich mit zeitloser Architektur. mit Walmdach
  • mit Flachdach

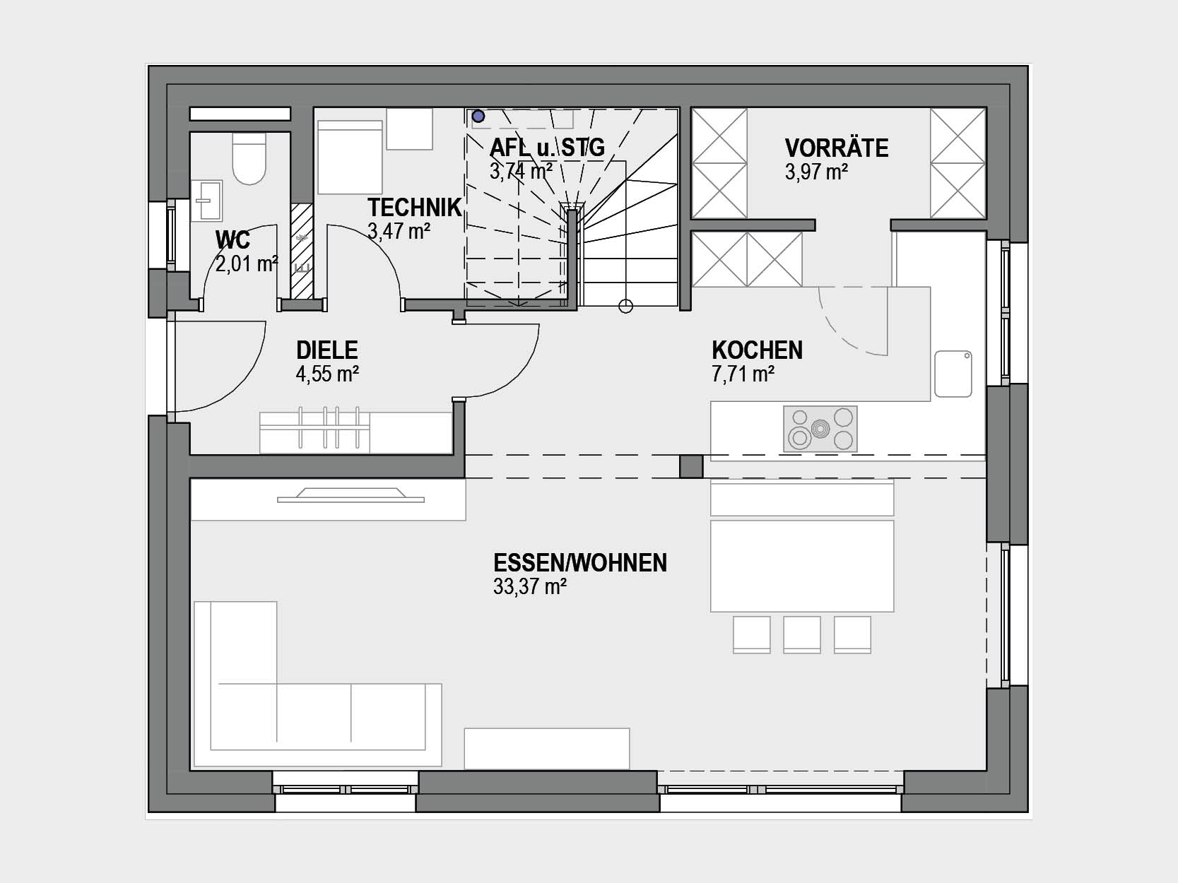
Raumaufteilung

Grundrissvarianten:

  • Grundriss EG
  • Grundriss OG

Massiv. Leistbar.
Zukunftssicher.

Mit einem Ziegelfertighaus verbindest du die Vorteile massiver Bauweise mit der Effizienz moderner Fertigung und das zum Preis eines herkömmlichen Holzriegelfertighauses. Du profitierst von hoher Wertbeständigkeit, einem ausgezeichneten Raumklima und nachhaltiger Qualität, ohne Kompromisse beim Budget einzugehen. Dein Traumhaus aus Ziegel: Langlebig, energieeffizient und einfach gut gebaut.

Die Typenhäuser Graz Serie

Raumaufteilung
GRAZ 114

Grundriss EG
Grundriss OG
Bad & WC getrennt
Kellergeschoß
Grundrisspläne downloaden

Top Ausstattung mit bester Qualität

Bei deinem Zuhause zählt jedes Detail. Darum bekommst du bei uns ausschließlich hochwertige Materialien, moderne Technik und eine Ausstattung, die keine Wünsche offen lässt. So genießt du höchsten Komfort, lange Lebensdauer und ein Zuhause, das dir Tag für Tag Freude macht.

  • Flexible Gestaltung der Grundrisse

  • Regionale Partner

  • Ziegelmassive Bauweise

  • Fixtermin & Fixpreis

Austrohaus

Vorteile im Überblick Benefits

  • Alles aus einer Hand

  • Kostenoptimierte und effiziente Häuser

  • Schlüsselfertig

  • jegliche Dachform

Persönliche
Beratung Beratung

Bei einem kostenlosen Beratungstermin helfe ich dir,
dein Traumhaus zu finden!

Jetzt anfragen
Manfred Schmid Manfred Schmid

Dein
Wohntraum
beginnt hier.

Bei deinem AUSTROHAUS Berater

Jetzt unverbindlich beraten lassen
Visualisierung des Austrohaus Typenhauses Graz 114 Design mit modernem Flachdach – stilvolles Ziegelfertighaus mit klarer Architektur.

Plane dein Zuhause
ganz nach deinen
Vorstellungen.

Massiv. schnell. nachhaltig.

Jetzt konfigurieren

Hol dir mehr
Inspirationen.

Dein Hausbuch zum Anfassen

Jetzt bestellen
Beratungsanfrage
Hausbau-Konfigurator
Katalog bestellen

Mit AUSTROHAUS

Ziegel für
Ziegel zum Glück

  • Finanzierung

    Du zahlst bei AUSTROHAUS keine Anzahlung und erhältst mit dem Angebot fixe Termine und fixe Kosten. Somit hast du bei deinem Bauprojekt 100% finanzielle Sicherheit.

  • Service

    Eigenes Serviceteam, individuelle Finanzierungsberatung, Unterstützung bei der Grundstückssuche und persönliche Einrichtungsberatung, wir begleiten dich von Anfang bis Zuhause.

  • Know How

    Über 3.000 zufriedene Kundinnen und Kunden vertrauen auf unsere kompetente Beratung und fachlich ausgebildeten Mitarbeitenden.

  • Ziegelmassiv

    Einfamilien- und Doppelhäuser in hochwertiger Ziegelmassivbauweise – nachhaltig gebaut, wertbeständig und individuell geplant für Dein perfektes Zuhause.

Frequently
Asked Questions

Seit wann gibt es AUSTROHAUS und wie viel Häuser werden pro Jahr gebaut?

AUSTROHAUS ist eine Marke der ETZI-Group, die 1993 von KommR. Maximilian Etzenberger gegründet wurde. Seitdem wurden über 3.500 Einfamilienhäuser, Doppelhäuser und Wohnungen realisiert.

Jährlich werden mehr als 200 Wohnträume belags- oder schlüsselfertig übergeben. Für dich bedeutet das: viel Erfahrung, hohe Qualität und ein verlässlicher Partner beim Hausbau.

Was ist der Unterschied zwischen AUSTROHAUS und ETZI?

AUSTROHÄUSER – durchdachte Typenhäuser
Austrohäuser sind sorgfältig geplante Typenhäuser aus Ziegel, bei denen du aus 52 bewährten Hauskonzepten wählen kannst. Jedes Modell überzeugt durch durchdachte Grundrisse, moderne Architektur und ein starkes Preis-Leistungs-Verhältnis.

ETZI-Häuser – individuell geplant
ETZI-Häuser sind maßgeschneiderte Unikate, die gemeinsam mit unserem Planungsteam exakt nach deinen Wünschen und Vorstellungen entwickelt werden.

Egal, ob Typenhaus oder individuell geplantes Haus – bei Qualität und Ausführung gibt es keine Unterschiede. Du erhältst in jedem Fall ein hochwertiges Zuhause, das höchsten Ansprüchen gerecht wird.

Wie lange dauert es, bis mein Haus bezugsfertig ist?

Die Bauzeit deines Hauses wird von mehreren Faktoren beeinflusst – etwa von der Größe, der individuellen Planung sowie dem gewählten Leistungsumfang.
Mit einem AUSTROHAUS kannst du jedoch auf eine effiziente, durchdachte und bestens koordinierte Umsetzung vertrauen. Dank klar strukturierter Abläufe und langjähriger Erfahrung liegt die Bauzeit in der Regel zwischen 7 und 12 Monaten.

Was bedeutet es, mit einem Generalunternehmen zu bauen?

Wenn Du mit einem Generalunternehmen wie AUSTROHAUS baust, hast du einen zentralen Ansprechpartner für Dein gesamtes Bauprojekt. Das bedeutet für Dich: weniger Koordinationsaufwand, klare Abläufe und mehr Sicherheit beim Hausbau. AUSTROHAUS übernimmt die Organisation aller Gewerke, die Planung und die Umsetzung – so kannst du Dein Haus stressfrei und effizient realisieren.

* Bauzone 1, Oberösterreich; Haus mit Flachdach; außen schlüsselfertig; innen belagsfertig inkl. Bodenplatte und Streifenfundamente; Außenwand mit 25 cm WALLMENT-Ziegelfertigwänden und 20 cm Vollwärmeschutzfassade; WINDOWMENT®-Kunststofffenster; VIESSMANN-Luft-Wasser-Wärmepumpe; komplette Elektro- und Sanitärrohinstallation; Estrich; Innenputz;

Zur Wunschliste hinzugefügt

Du findest deine Wunschliste auf der rechten Seite bei dem ❤️

zur Wunschliste